LOCAL D'ACTIVITE NEUF A VENDRE - VARENNES LES MACON
2595 m2 divisibles à partir de 172 m2 | 1 168,02 € /m2
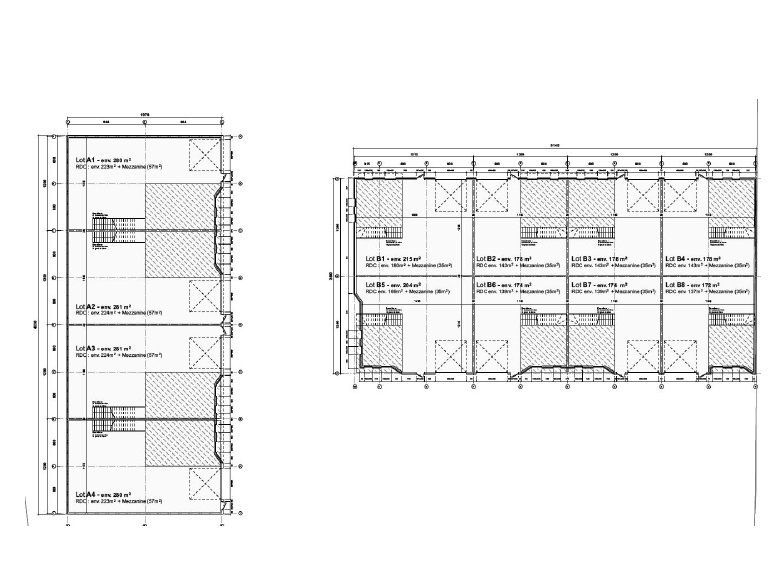
A VENDRE - CELLULES D'ACTIVITES
A Vendre, au coeur du Parc d'activités des Combes, au sud de MACON, cellules d'activités d'une surface totale de 2 595m² ayant pour vocation d'accueillir des activités telles que : de l'artisanat, de la production, du stockage, du showroom et un local comprenant une surface de vente. L'ensemble sera composé de 12 lots répartis dans 2 bâtiments distincts comme suit : - Bâtiment A : 4 lots ; Bâtiment B : 8 lots. Ces bâtiments seront organisés en RDC avec des mezzanines, livrés brut et fluides en attente. Le lot A1 est réservé. En extérieur, il sera prévu des places de stationnements pré-équipées IRVE, réparties sur l'ensemble du terrain, ainsi que des espaces verts plantés, site clos et sécurisé. La livraison de chaque lot est prévue en plateau non chauffé, non soumis à la réglementation thermique, ni aux autorisations pour ERP, les lots seront simplement isolés. Disponibilité 2ème trimestre 2025.
Réf : 7113
Aménagements
- surface totale : 2595 m2
- surface divisible : à partir de 172 m2
Informations financières
- Assujetti à la TVA : oui
- prix de vente : 1 168,02 € /m2
- honoraires à charge : De l'acquéreur
Voir quelques surfaces plus en détailImprimer la ficheVoir nos prestations et tarifs
L'agence
PILOTIM DEMO
PILOTIM Chalon
Rue de la Grange Frangy
71100 CHALON SUR SAONE
Tél : 06.06.10.11.12
Votre conseiller pour avoir plus d'informations
Alexandre CELIK
Agent commercial
Tél : 06.06.10.11.12
Tél mobile : 06.06.91.92.06
Contactez-nous via ce formulaire ou appelez-nous pour visiter ce bien
Transports et commerces sur VARENNES LES MACON (71000)
Varennes Les Macon est une ville de 574 habitants. On y trouve des commerces dont des supermarchés ou supérettes.
En savoir plus sur Varennes Les Macon




Nous sommes membre de la FNAIM, Fédération Nationale de l'Immobilier