LOCAL D'ACTIVITE A VENDRE - LYON 9EME ARRONDISSEMENT
1514 m2 | 1 900 000 €
IMMEUBLE MIXTE
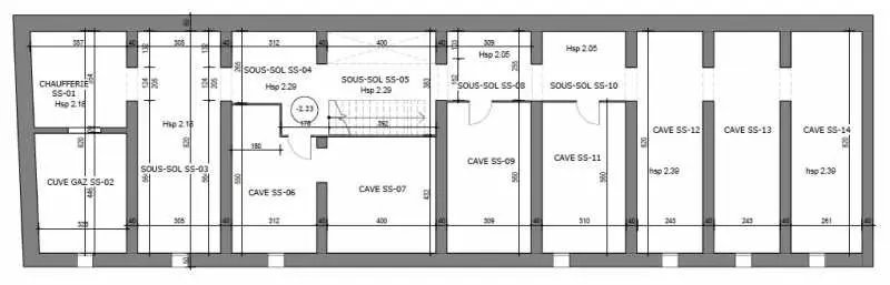
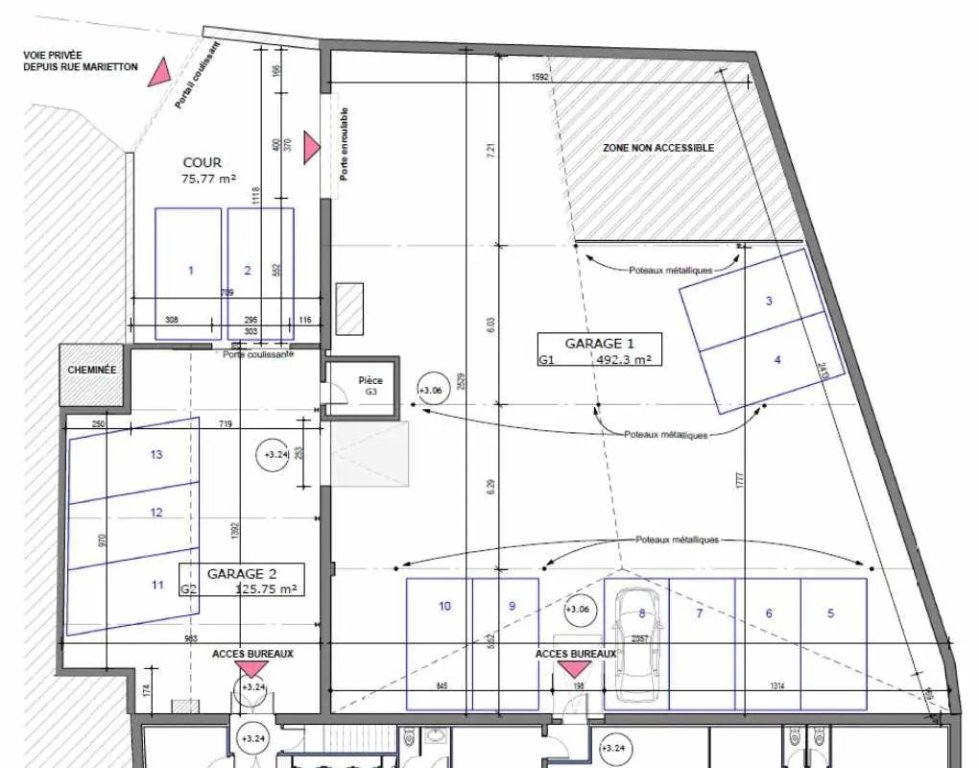
En plein cœur de Lyon 9ème. A proximité immédiate de l'autoroute et du métro. Nous vous proposons un immeuble indépendant de bureaux réparti sur 2 étages avec un sous sol pour un total de 896m2. Un atelier/ garage de 618m2 est attenant à cet immeuble de bureaux.
Réf : 7032
Nous aimons
- Emplacement urbain
- Facilité d'accès
- Le potentiel de la construction
Caractéristiques
Informations financières
- prix de vente : 1 900 000 €
- prix de vente : 1 254,95 € /m2
- honoraires à charge : De l'acquéreur
- soumis au statut de la copropriété : non
Imprimer la ficheVoir nos prestations et tarifs
Classe énergie et classe climat
DPE VIERGE
L'agence
PILOTIM DEMO
PILOTIM Lyon
1, rue Claude Chappe
69370 ST DIDIER AU MONT D OR
Tél : 06.06.10.11.12
Contactez-nous pour visiter ce bien
Transports et commerces sur LYON 9EME ARRONDISSEMENT (69009)
Lyon 9eme Arrondissement est une ville de 52 903 habitants.
En savoir plus sur Lyon 9eme Arrondissement




Nous sommes membre de la FNAIM, Fédération Nationale de l'Immobilier