BÂTIMENT INDEPENDANT A LOUER - MEYZIEU
3377 m2 | 25 833 € HC et HT par mois
BÂTIMENT INDEPENDANT
Un bâtiment industriel moderne de 3 377 m² est disponible à la location, situé au cœur de la Zone Industrielle de Meyzieu, à l'est de Lyon. Ce local d'activité se trouve sur un terrain indépendant de 6 818 m², offrant un cadre idéal pour des opérations de stockage ou de production. Construit récemment, ce bâtiment est implanté sur un site clos et sécurisé, garantissant une tranquillité d'esprit pour les locataires. Il est équipé de deux portes sectionnelles, avec la possibilité d'aménager un quai de déchargement, facilitant ainsi la logistique et l'accès des marchandises. De plus, le site dispose de 38 places de stationnement extérieures, assurant un accès aisé pour les employés et les visiteurs. Cette opportunité représente un choix stratégique pour les entreprises souhaitant s'implanter dans une zone industrielle dynamique et bien desservie.
Réf : 7023
Caractéristiques
Aménagements
- construit en : 2018
- chauffage : individuel aérothermie
- climatisation : oui
Informations financières
- loyer mensuel HC et HT : 25 833 €
- loyer annuel HC et HT : 310 000 €
- loyer annuel HC et HT : 91,80 €/m2
- charges mensuelles : 1 016,67 €
- charges annuelles : 3,61 €/m2
- dépôt de garantie : 76 250 €
- type de bail : Commercial
Prestations
Façade en bardage double peau
- Accès pour véhicules légers et poids lourds
- Accès PMR
- Double accès
- Aire de manœuvre et de chargement
- Portail d'accès
- Charpente métallique
- Dalle béton quartzé
- Dalles de faux plafonds
- Dalle béton lisse teintée dans la masse, supportant une charge de 3t/m²
- Éclairage latéral et zénithal naturel :
- Châssis vitrés latéraux réguliers
- Trappes de désenfumage zénithal
- Chauffage par aérotherme gaz
- 2 portes sectionnelles motorisées de type PM
- Climatisation réversible
- Fibre optique
- Tarif jaune
- Sol en parquet bois
- Câblage courant fort et courant faible
- Panneaux acoustiques
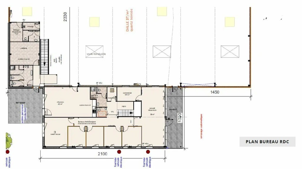
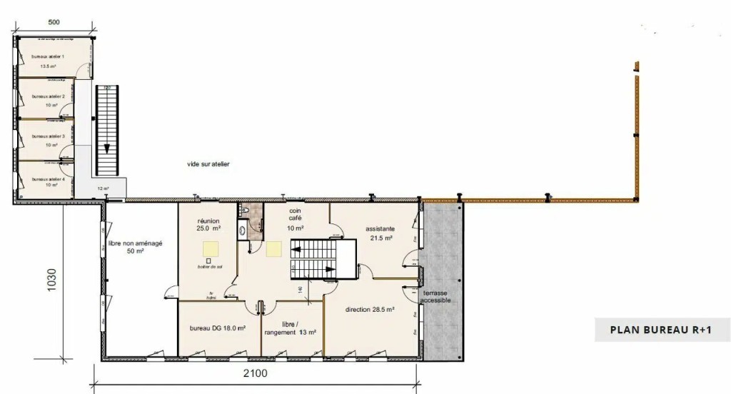
- Bureaux cloisonnés selon plan
- Salle de réunion
- Local technique
- Cuisine
- Sanitaires privatifs
- Surface RDC : 2787 m²
- Surface terrain : 6818 m²
Imprimer la ficheVoir nos prestations et tarifs
Classe énergie et classe climat
DPE VIERGE
L'agence
PILOTIM DEMO
PILOTIM Lyon
1, rue Claude Chappe
69370 ST DIDIER AU MONT D OR
Tél : 06.06.10.11.12
Contactez-nous pour visiter ce bien
Transports et commerces sur MEYZIEU (69330)
Meyzieu est une ville de 35 882 habitants.




Nous sommes membre de la FNAIM, Fédération Nationale de l'Immobilier