BÂTIMENT D'ACTIVITE A LOUER - CHASSELAY
1035 m2 | 10 166,67 € HC et HT par mois
BÂTIMENT INDEPENDANT
À PROXIMITÉ DE LA TECHLID - Situé dans la charmante commune de Chasselay, NCBC vous propose un bâtiment unique et extrêmement fonctionnel, érigé sur une parcelle de terrain spacieuse.
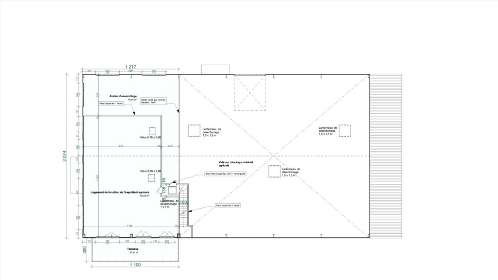
Construit en 2021, ce bâtiment récent peut être considéré comme neuf. Il offre une surface totale de 1 035 m², implantée sur une parcelle de 3 288 m². Ses atouts majeurs incluent un environnement bucolique et champêtre, une rareté pour ce type de construction. Malgré ce cadre idyllique, l'accessibilité est optimale : à seulement 300 mètres de la route nationale et à proximité immédiate de la zone d'activités de Lissieu.
Ce bâtiment se distingue également par sa polyvalence. Idéal pour accueillir des semi-remorques et une clientèle variée, il dispose d'un magasin avec autorisation de vente au détail (ERP5). À l'étage, un espace aménagé en appartement comprend une terrasse, un salon, une suite parentale, des bureaux, des chambres et des salles de bain, facilement transformable en bureaux selon les besoins.
Fruit du savoir-faire d'un architecte et d'artisans locaux, ce bâtiment offre des prestations de grande qualité, tant pour l'atelier et le stockage que pour le magasin et les espaces professionnels. Une opportunité exceptionnelle à découvrir sans tarder !
Réf : 7101
Nous aimons
- tout!
Caractéristiques
Aménagements
- construit en : 2021
Informations financières
- Assujetti à la TVA : oui
- loyer mensuel HC et HT : 10 166,67 €
- loyer annuel HC et HT : 122 000 €
- loyer annuel HC et HT : 117,87 €/m2
- dépôt de garantie : 30 500 €
- activités possibles : DIVERS COMMERCES, EQUIPEMENT DE LA MAISON, INDUSTRIE - PRODUCTION
- type de bail : COMMERCIAL
- frais de rédaction du bail : 1 200 €
Imprimer la ficheVoir nos prestations et tarifs
Classe énergie et classe climat
DPE VIERGE
L'agence
PILOTIM DEMO
PILOTIM Lyon
1, rue Claude Chappe
69370 ST DIDIER AU MONT D OR
Tél : 06.06.10.11.12
Contactez-nous pour visiter ce bien
Transports et commerces sur CHASSELAY (69380)
Chasselay est une ville de 2 828 habitants. On y trouve des commerces dont des supermarchés ou supérettes.




Nous sommes membre de la FNAIM, Fédération Nationale de l'Immobilier