LOCAL COMMERCIAL NEUF A VENDRE - MACON
776 m2 | 2 159 000 €
A VENDRE - LOCAL COMMERCIAL
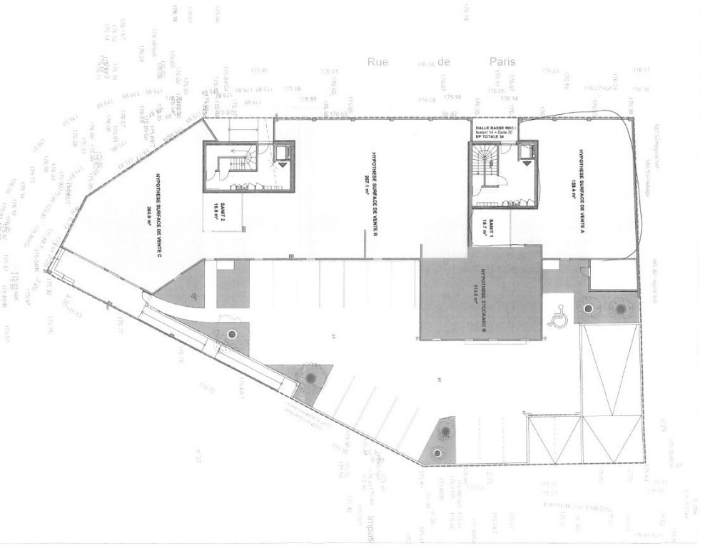
A vendre sur la commune de MACON, proche du centre historique, local commercial en VEFA de 776m² environ divisibles, avec un linéaire sur rue d'environ 70m dont 55m linéaire de vitrines, situé en pied d'immeuble. Sol : dalle béton finition lissée, murs brique ou béton brut, plafond isolation coupe-feu et thermique, Possibilité de places privatives sur le parking aérien de la copropriété. Livraison 1er semestre 2025.
Réf : 6622
Caractéristiques
Informations financières
- Assujetti à la TVA : oui
- prix de vente : 2 159 000 €
- prix de vente : 2 782,22 € /m2
- honoraires à charge : De l'acquéreur
Quelques surfaces plus en détail
Surfaces données à titre indicatif – Non contractuelles :
- Bon de visite (niveau 0) : 175.1 m2
- Bon de visite (niveau 0) : 380.9 m2
- Bon de visite (niveau 0) : 219.7 m2
Voir quelques surfaces plus en détailImprimer la ficheVoir nos prestations et tarifs
L'agence
PILOTIM DEMO
PILOTIM Chalon
Rue de la Grange Frangy
71100 CHALON SUR SAONE
Tél : 06.06.10.11.12
Votre conseiller pour avoir plus d'informations
Alexandre CELIK
Agent commercial
Tél : 06.06.10.11.12
Tél mobile : 06.06.91.92.06
Contactez-nous via ce formulaire ou appelez-nous pour visiter ce bien
Transports et commerces sur MACON (71000)
Macon est une ville de 34 448 habitants. On y trouve des commerces dont des supermarchés ou supérettes.




Nous sommes membre de la FNAIM, Fédération Nationale de l'Immobilier