CELLULES D'ACTIVITES A LOUER - VARENNES LES MACON
2315 m2 divisibles à partir de 172 m2 | 19 250 € HC et HT par mois
A LOUER - CELLULES D'ACTIVITES
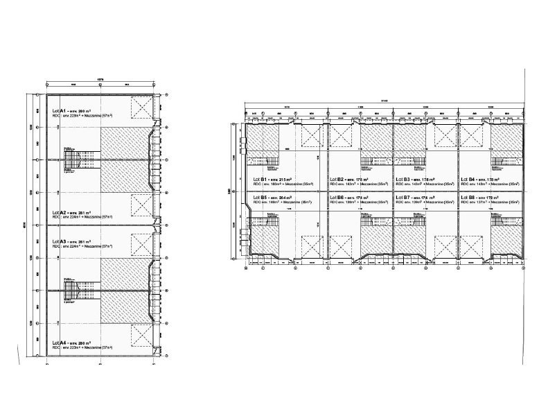
A louer, au cœur du Parc d'activités des Combes, au sud de MACON, cellules d'activités d'une surface totale de 2 315m² ayant pour vocation d'accueillir des activités telles que : de l'artisanat, de la production, du stockage, du showroom et un local comprenant une surface de vente. L'ensemble sera composé de 12 lots répartis dans 2 bâtiments distincts comme suit : - Bâtiment A : 4 lots ; Bâtiment B : 8 lots. Ces bâtiments seront organisés en RDC avec des mezzanines, livrés brut et fluides en attente. Le lot A1 est réservé. En extérieur, il sera prévu des places de stationnements pré-équipées IRVE, réparties sur l'ensemble du terrain, ainsi que des espaces verts plantés, site clos et sécurisé. La livraison de chaque lot est prévue en plateau non chauffé, non soumis à la réglementation thermique, ni aux autorisations pour ERP, les lots seront simplement isolés. Disponibilité 2ème trimestre 2025.
Réf : 7126
Aménagements
- surface totale : 2315 m2
- surface divisible : à partir de 172 m2
Informations financières
- Assujetti à la TVA : oui
- loyer annuel HC et HT : 99,78 €/m2
- charges annuelles : 4 €/m2
- type de bail : BAIL COMMERCIAL
Imprimer la ficheVoir nos prestations et tarifs
Classe énergie et classe climat
DPE VIERGE
L'agence
PILOTIM DEMO
PILOTIM Chalon
Rue de la Grange Frangy
71100 CHALON SUR SAONE
Tél : 06.06.10.11.12
Votre conseiller
Alexandre CELIK
Agent commercial
Tél : 06.06.10.11.12
Tél mobile : 06.06.91.92.06
Contactez-nous pour visiter ce bien
Transports et commerces sur VARENNES LES MACON (71000)
Varennes Les Macon est une ville de 574 habitants. On y trouve des commerces dont des supermarchés ou supérettes.
En savoir plus sur Varennes Les Macon




Nous sommes membre de la FNAIM, Fédération Nationale de l'Immobilier