BUREAU NEUF A VENDRE - MACON
3266 m2 divisibles à partir de 112 m2 | 2 360 € /m2
Programme Bureaux
A vendre, bureaux sur programme neuf, secteur MACON CENTRE, d'une surface totale de 3 266m² environ divisibles à partir de 112m² environ. Bâtiment dernière génération, agrée ERP., idéalement situé sur axe passant, proximité accès A6, Gare SNCF, transports en commun au pied des bureaux ainsi que toutes commodités. Livraison 2ème trimestre 2024.
Certification du programme immobilier :
LE KWARTZ sera certifié BREEAM niveau Très bon.
La certification britannique BREEAM, est le standard international pour évaluer l'impact environnemental d'un bâtiment. Développée par le Building Research Establishment (BRE) au Royaume Uni en 1990, elle est connue comme étant le premier système d'évaluation et de certification de la performance environnementale des bâtiments . Elle est aujourd'hui la certification de référence européenne dans l'immobilier commercial et est utilisée dans de nombreux pays. Elle tient compte des aspects techniques du bâtiment et elle prend également en considération les aspects humains ainsi que la biodiversité et l'écomobilité.
Très belle opportunité pour toute activité tertiaire.
Réf : 5884
Caractéristiques
Aménagements
- construit en : 2024
- surface totale : 3266 m2
- surface divisible : à partir de 112 m2
Informations financières
- Assujetti à la TVA : oui
- prix de vente : 2 360 € /m2
- honoraires à charge : De l'acquéreur
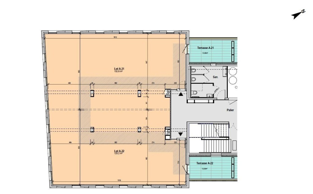
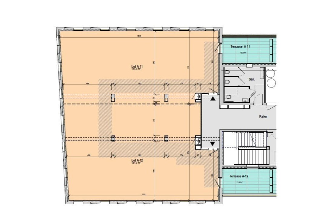
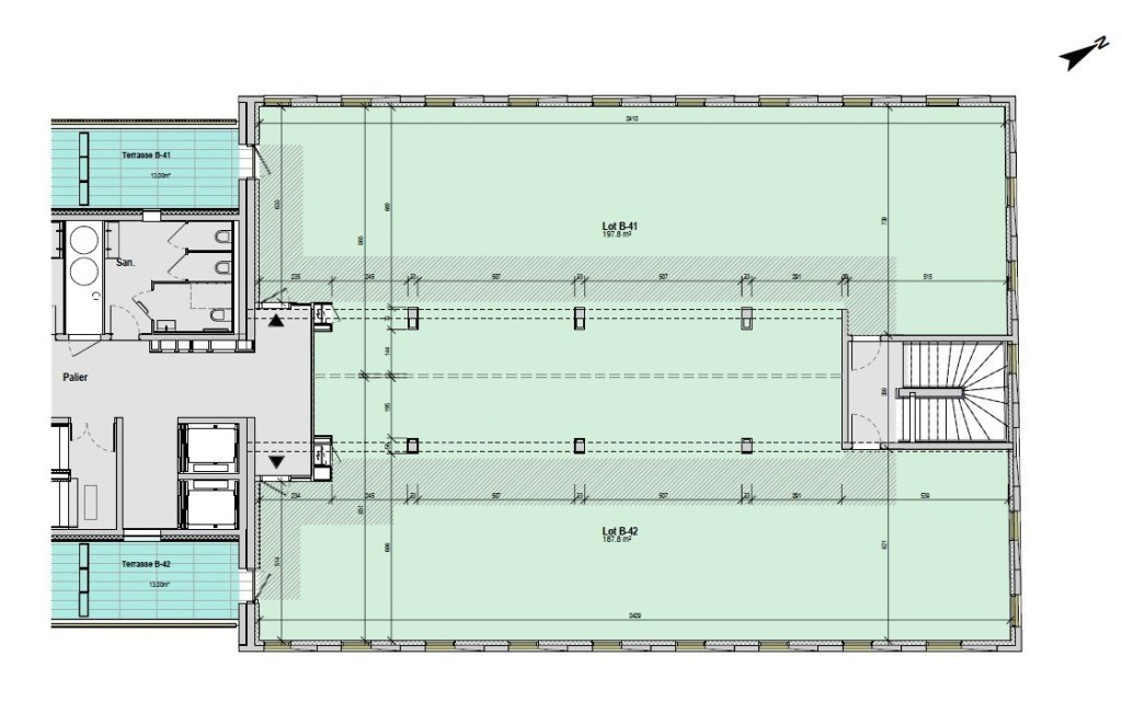
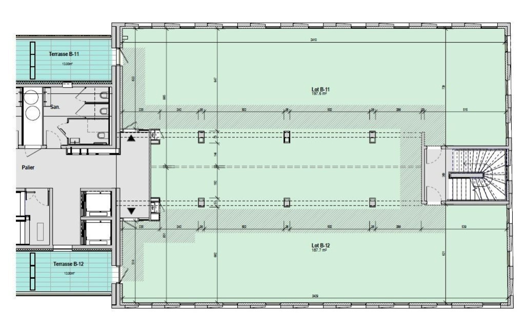
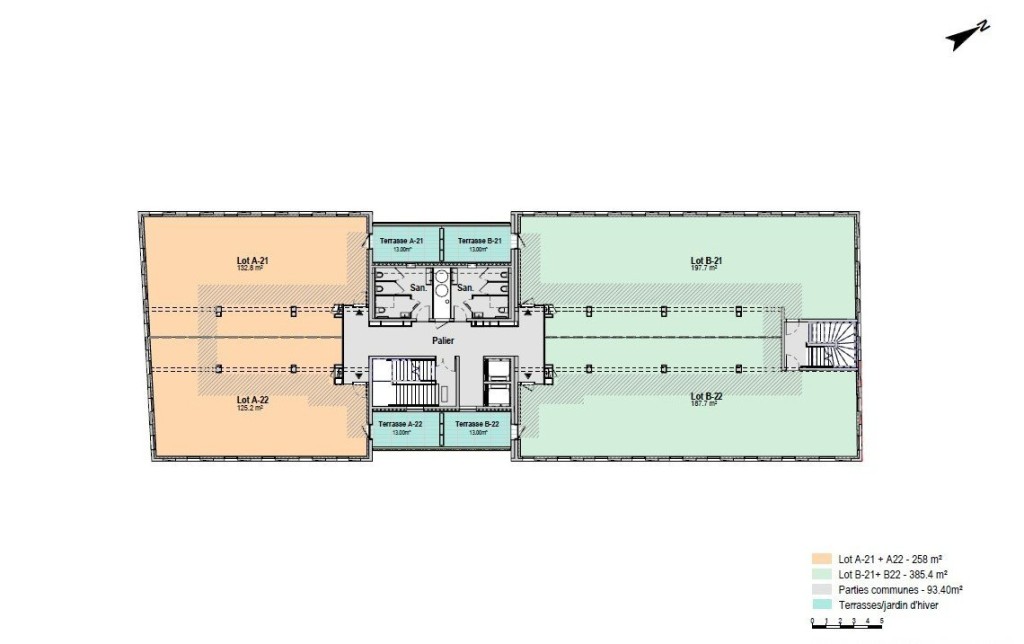
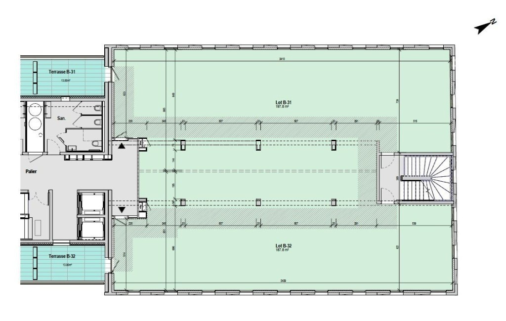
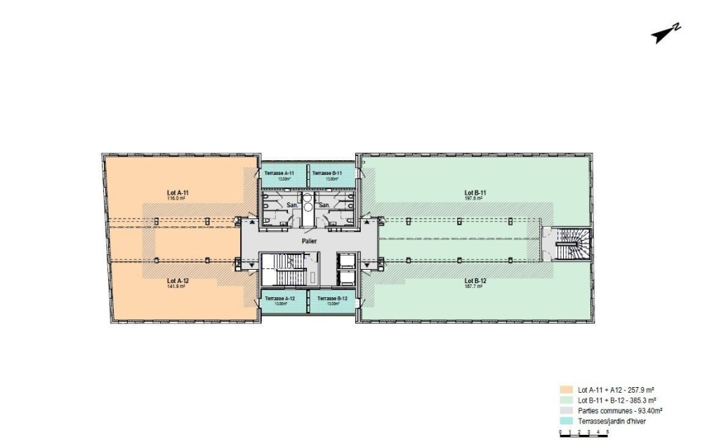
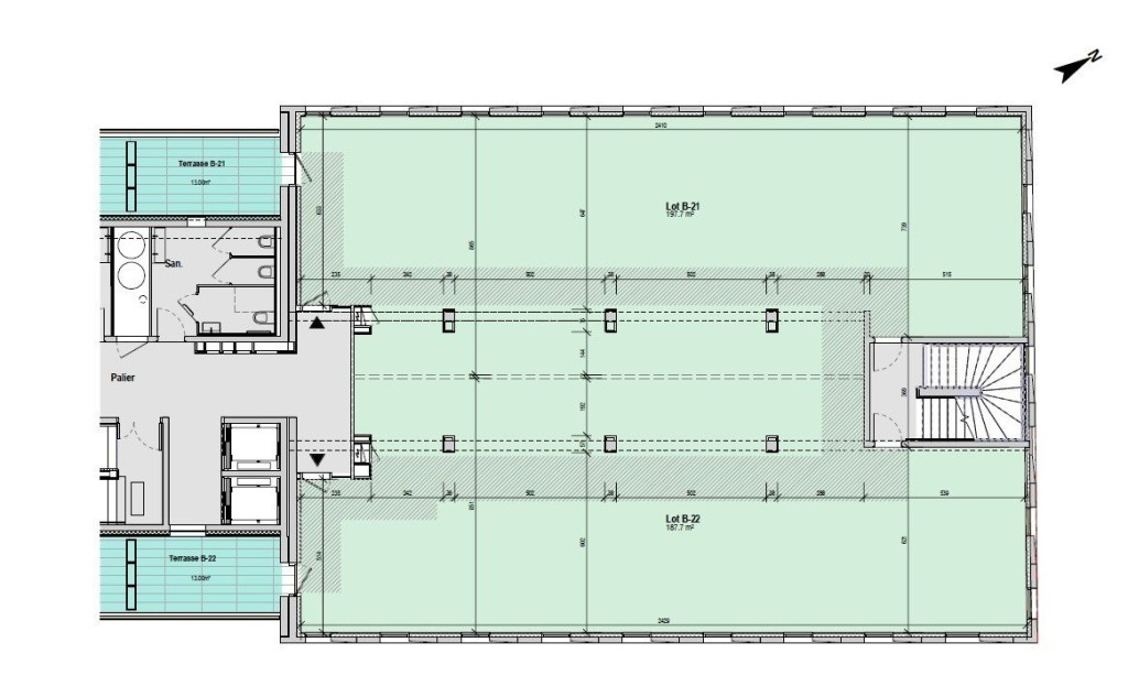
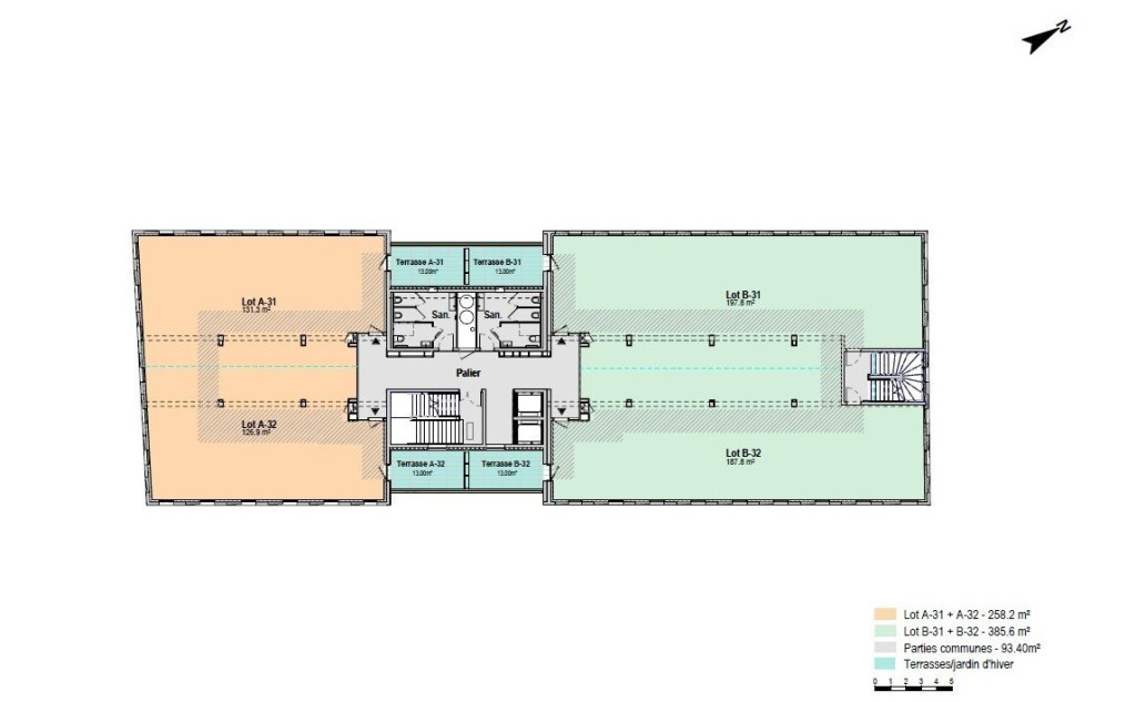
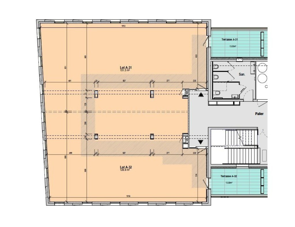
Quelques surfaces plus en détail
Surfaces données à titre indicatif – Non contractuelles :
- Bureau (niveau 1) : 112.7 m2
- Bureau (niveau 1) : 300.8 m2
- Bureau (niveau 1) : 620.2 m2
- Bureau (niveau 2) : 300.8 m2
- Bureau (niveau 2) : 443.4 m2
- Bureau (niveau 3) : 300.8 m2
- Bureau (niveau 3) : 443.4 m2
- Bureau (niveau 4) : 300.8 m2
- Bureau (niveau 4) : 227.9 m2
- Bureau (niveau 4) : 215.5 m2
Voir quelques surfaces plus en détailImprimer la ficheVoir nos prestations et tarifs
L'agence
PILOTIM DEMO
PILOTIM Chalon
Rue de la Grange Frangy
71100 CHALON SUR SAONE
Tél : 06.06.10.11.12
Votre conseiller pour avoir plus d'informations
Alexandre CELIK
Agent commercial
Tél : 06.06.10.11.12
Tél mobile : 06.06.91.92.06
Contactez-nous via ce formulaire ou appelez-nous pour visiter ce bien
Transports et commerces sur MACON (71000)
Macon est une ville de 34 448 habitants. On y trouve des commerces dont des supermarchés ou supérettes.




Nous sommes membre de la FNAIM, Fédération Nationale de l'Immobilier